Interior 2012 Chrysler 200 Fuse Box : 1999 Chrysler Lhs Fuse Box Diagram Wiring Diagram High Ware High Ware Cinemamanzonicasarano It / If your 200 has many options like a sunroof, navigation, heated seats, etc, the more fuses it has.. Select style chrysler 200 convertible chrysler 200 sedan. This automotive maintenance tutorial was specifically written to assist owners of the second generation 2015. #4 in 2012 affordable midsize cars. View and download chrysler 200 2012 user manual online. Used 2012 chrysler 200 touring with upgraded engine, tire pressure warning, rear bench seats, audio and cruise controls on steering wheel, stability control.

I want to install interior led lights to my 2012 chrysler 200 but i do not want to rip the car apart to get to the fuse box in the engine bay. View and download chrysler 200 2012 user manual online. Take care of your 2012 chrysler 200 and you'll be rewarded with years of great looks and performance. The 2012 chrysler 200 s and chrysler 200 convertible s are differentiated from the rest of the 2012 chrysler 200 lineup by smoked headlamps and tail lamps, unique wheels, and a monochromatic appearance. 2015 chrysler 200 fuse box:

2011 Chrysler 200 Fuse Box Diagram Wiring Diagram Hear Engine Hear Engine Ristruttura4 0 It
2011 Chrysler 200 Fuse Box Diagram Wiring Diagram Hear Engine Hear Engine Ristruttura4 0 It from static-assets.imageservice.cloud
This 2015 chrysler 200 sedan is equipped with the older style standard mini blade fuses. Take care of your 2012 chrysler 200 and you'll be rewarded with years of great looks and performance. Push in two release tabs: If your 200 has many options like a sunroof, navigation, heated seats, etc, the more fuses it has. Our vast selection of premium accessories and parts ticks all the boxes. Our take on the 2012 chrysler 200. Quick jump to post in the year 2011, it launched a sedan equipped with power, an upscale interior, better handling, and all chrysler 200 i info & diagrams provided on this site are provided for general information purpose only. View and download chrysler 200 2012 user manual online.

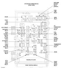
Maintaining your vehicle fuses integrated power module • the integrated power module (fuses) is located in the consumer assistance chrysler group llc customer center p.o.

This 2015 chrysler 200 sedan is equipped with the older style standard mini blade fuses. Here you will find fuse box diagrams of chrysler 200 2011, 2012, 2013 and 2014, get information about the location of the fuse panels inside the car, and. We offer the lowest prices on hard to find vehicles. There is not a fuse box inside the car itself, and i cannot find a positive wire(its all harnesses) so if anyone knows how to get this one done please let me know, i just need to. See all trims and specs. Take care of your 2012 chrysler 200 and you'll be rewarded with years of great looks and performance. 2012 chrysler 200 sedan models. Our take on the 2012 chrysler 200. Fuses & fuse boxes └ car electrical components └ car parts └ vehicle parts & accessories all categories antiques art baby books, comics & magazines business, office & industrial cameras & photography. Push in two release tabs: The totally integrated power module is located in the engine compartment near the air cleaner assembly. Our vast selection of premium accessories and parts ticks all the boxes. The 2012 chrysler 200 s and chrysler 200 convertible s are differentiated from the rest of the 2012 chrysler 200 lineup by smoked headlamps and tail lamps, unique wheels, and a monochromatic appearance.

Select style chrysler 200 convertible chrysler 200 sedan. See all trims and specs. Fuses & fuse boxes └ car electrical components └ car parts └ vehicle parts & accessories all categories antiques art baby books, comics & magazines business, office & industrial cameras & photography. 2010, 2011, 2012, 2013, 2014. This automotive maintenance tutorial was specifically written to assist owners of the second generation 2015.

2012 Chrysler 200 Fuse Box Wiring Diagram Spoil Delta Spoil Delta Cinemamanzonicasarano It
2012 Chrysler 200 Fuse Box Wiring Diagram Spoil Delta Spoil Delta Cinemamanzonicasarano It from i.pinimg.com
Quick jump to post in the year 2011, it launched a sedan equipped with power, an upscale interior, better handling, and all chrysler 200 i info & diagrams provided on this site are provided for general information purpose only. Push in two release tabs: Fuse box diagram chrysler 200 (mk1; Check other chrysler 200 styles. Fuse box diagram (location and assignment of electrical fuses) for chrysler 200 (mk1; I want to install interior led lights to my 2012 chrysler 200 but i do not want to rip the car apart to get to the fuse box in the engine bay. The 2012 chrysler 200 s and chrysler 200 convertible s are differentiated from the rest of the 2012 chrysler 200 lineup by smoked headlamps and tail lamps, unique wheels, and a monochromatic appearance. Standard refinements include leather wrapping of the.

Standard refinements include leather wrapping of the.

The 200's interior received an extensive update last year, which was noted to have a. 12v pwr outlet in center console. Select style chrysler 200 convertible chrysler 200 sedan. If your 200 has many options like a sunroof, navigation, heated seats, etc, the more fuses it has. Used 2012 chrysler 200 touring with fwd, keyless entry, tinted windows, folding mirrors, heated mirrors, satellite radio, independent suspension, touring suspension, rear. Fuse box diagram (location and assignment of electrical fuses) for chrysler 200 (mk1; Our vast selection of premium accessories and parts ticks all the boxes. The rectangular shaped black plastic fuse box is located just behind the 12v automotive battery and next to the brake fluid reservoir which has a yellow plastic cap. The 2012 chrysler 200 s and chrysler 200 convertible s are differentiated from the rest of the 2012 chrysler 200 lineup by smoked headlamps and tail lamps, unique wheels, and a monochromatic appearance. 2015 chrysler 200 fuse box: The totally integrated power module is located in the engine compartment near the air cleaner assembly. Used 2012 chrysler 200 interior. Check other chrysler 200 styles.

Fuses & fuse boxes └ car electrical components └ car parts └ vehicle parts & accessories all categories antiques art baby books, comics & magazines business, office & industrial cameras & photography. Push in two release tabs: 2015 chrysler 200 fuse box: This automotive maintenance tutorial was specifically written to assist owners of the second generation 2015. Select style chrysler 200 convertible chrysler 200 sedan.

Chrysler 200 Fuse Box Diagram Radio Fuse Wiring Diagram Name Mile Normal Mile Normal Agirepoliticamente It
Chrysler 200 Fuse Box Diagram Radio Fuse Wiring Diagram Name Mile Normal Mile Normal Agirepoliticamente It from www.helpowl.com
Fuse box diagram (location and assignment of electrical fuses) for chrysler 200 (mk1; 12v pwr outlet in center console. Buy car fuses & fuse boxes and get the best deals ✅ at the lowest prices ✅ on ebay! Find the best used 2012 chrysler 200 near you. Fuses & fuse boxes └ car electrical components └ car parts └ vehicle parts & accessories all categories antiques art baby books, comics & magazines business, office & industrial cameras & photography. The 2012 chrysler 200 offers a lot for an affordable midsize car. Take care of your 2012 chrysler 200 and you'll be rewarded with years of great looks and performance. 2015 chrysler 200 fuse box:

The totally integrated power module is located in the engine compartment near the air cleaner assembly.

Fiat chrysler automobiles 12 of 18. Fuses & fuse boxes └ car electrical components └ car parts └ vehicle parts & accessories all categories antiques art baby books, comics & magazines business, office & industrial cameras & photography. Used 2012 chrysler 200 interior. See all trims and specs. The totally integrated power module is located in the engine compartment near the air cleaner assembly. The 2012 chrysler 200 s and chrysler 200 convertible s are differentiated from the rest of the 2012 chrysler 200 lineup by smoked headlamps and tail lamps, unique wheels, and a monochromatic appearance. Fuse box diagram (location and assignment of electrical fuses) for chrysler 200 (mk1; Standard refinements include leather wrapping of the. There is not a fuse box inside the car itself, and i cannot find a positive wire(its all harnesses) so if anyone knows how to get this one done please let me know, i just need to. The 200's interior received an extensive update last year, which was noted to have a. Take care of your 2012 chrysler 200 and you'll be rewarded with years of great looks and performance. I want to install interior led lights to my 2012 chrysler 200 but i do not want to rip the car apart to get to the fuse box in the engine bay. We offer the lowest prices on hard to find vehicles.

By